間取り

image

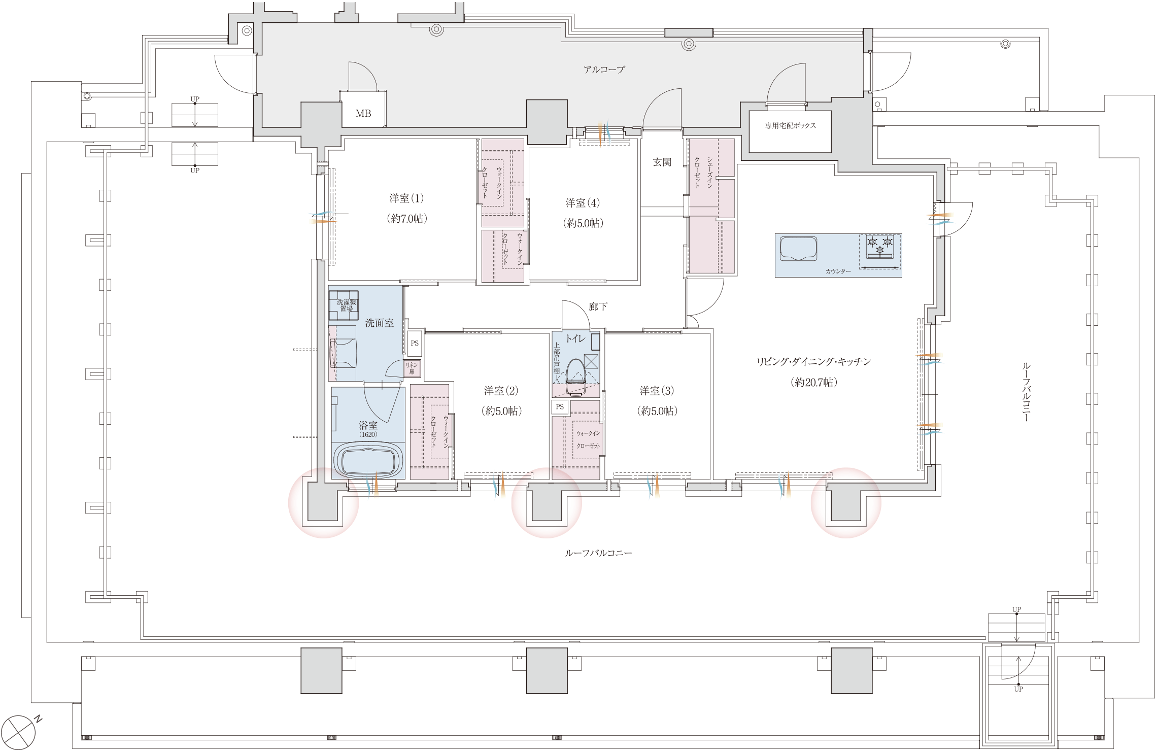
ETYPE

最上階Premium Plan

4LDK+4WIC+SIC

専有面積 102.32(約30.95坪)

(専有宅配ボックス面積 2.39㎡含む)

■ルーフバルコニー面積
138.85(約42.00坪)

  • ワンフロア1邸、ワイドなルーフバルコニーを設置した100㎡超4LDKプラン。アイランドキッチンを採用した約20.7帖の贅沢なLDK。
  • 4つの洋室にはウォークインクローゼット、玄関にはウォークインクローゼットを設置。玄関を中心にパブリックとプライベートを分離した設計プラン。
eタイプ図面

RIVER SIDE VIEW

ルーフバルコニー完成予想図
  • ※掲載の図面等は計画段階のものであり、内容等が変更になる場合がございます。あらかじめご了承ください。
  • ※WIC:ウォークインクローゼット SIC:シューズインクローゼット
  • ※掲載のルーフバルコニー完成予想図は設計図を基に作成したもので形状・色等は実際のものと異なる場合があります。なお、外観形状の細部、設備機器等は表現しておりません。植栽は特定の季節の状況を示すものではなく、竣工時には完成予想CG程度には成長しておりません。また樹種等は変更となる場合があります。